PROYECTO, DIRECCIÓN Y EJECUCIÓN DE OBRAS DE BAJA, MEDIA Y ALTA TENSIÓN

MANTENIMIENTO PREDICTIVO, PREVENTIVO Y CORRECTIVO EN BAJA, MEDIA Y ALTA TENSIÓN

TRÁMITES EN DISTRIBUIDORAS DE ENERGÍA Y COLEGIO DE INGENIEROS

DESARROLLO DE BARRIOS PRIVADOS Y ABIERTOS. SISTEMA LLAVE EN MANO

ANÁLISIS DE FACTURACIÓN DE CONSUMO DE ENERGÍA Y POTENCIA

PROYECTO, DIRECCIÓN Y EJECUCIÓN DE OBRAS CIVILES E INSTALACIONES SANITARIAS

Quiénes somos

Más de 25 años brindando soluciones eléctricas profesionales.

Nuestro pilar fundamental es el recurso humano, cuya experiencia y responsabilidad nos hacen una empresa seria y confiable.

El conocimiento de la ingeniería y de los equipamientos de diferentes instalaciones como estaciones transformadoras, centros de transformación a nivel, aéreo o subterráneo, líneas aéreas y subterráneas de baja, media y alta tensión, edificios, ascensores, obras civiles y sanitarias nos permite realizar cambios de equipamiento, ampliaciones, modificaciones y nuevas obras de infraestructura, con la flexibilidad necesaria para adecuar las tareas a las necesidades de cada instalación gracias a nuestro plantel profesional.

  • Experiencia
  • Responsabilidad
  • Conocimiento
  • Flexibilidad

Nuestros valores

Servicios

Estamos orientados a dar respuestas a las necesidades de la industria en general,
desarrollos inmobiliarios, distribuidoras de energía y empresas petroleras.


PROYECTO, DIRECCIÓN Y EJECUCIÓN
DE OBRAS DE BAJA,
MEDIA Y ALTA TENSIÓN.

Consultenos
MANTENIMIENTO PREDICTIVO, PREVENTIVO
Y CORRECTIVO EN BAJA,
MEDIA Y ALTA TENSIÓN.

Pérdidas de transformadores in situ. Termometría y termografía.
Ensayo de transformadores. Verificación de protecciones. Empalmes y terminales.

Consultenos
TRÁMITES EN DISTRIBUIDORAS DE ENERGÍA.
VISADO DE PROYECTO, DIRECCIÓN
Y EJECUCIÓN EN COLEGIO DE INGENIEROS.

Consultenos
DESARROLLO DE BARRIOS PRIVADOS O ABIERTOS,
MASTERPLAN, GAS, AGUA, CLOACAS, TRÁMITE EN ADA.
DESARROLLO LLAVE EN MANO.

Consultenos
ANÁLISIS DE FACTURACIÓN DE CONSUMO
DE ENERGÍA Y POTENCIA.

Consultenos
PROYECTO, DIRECCIÓN Y EJECUCIÓN
DE OBRAS CIVILES
E INSTALACIONES SANITARIAS

Consultenos
Algunas de nuestras obras

Casos de éxito


GLEBA S.A

Fabricación e instalación de nuevos tableros.

Cliquée sobre la imagen para ver la galería

YPF GAS, PLANTA MERCEDES

Instalación de interruptor tetrapolar de 1600 A, dotado de protección termomagnética y regulación electrónica, con ajuste instantáneo menor a 8 kA

Cliquée sobre la imagen para ver la galería

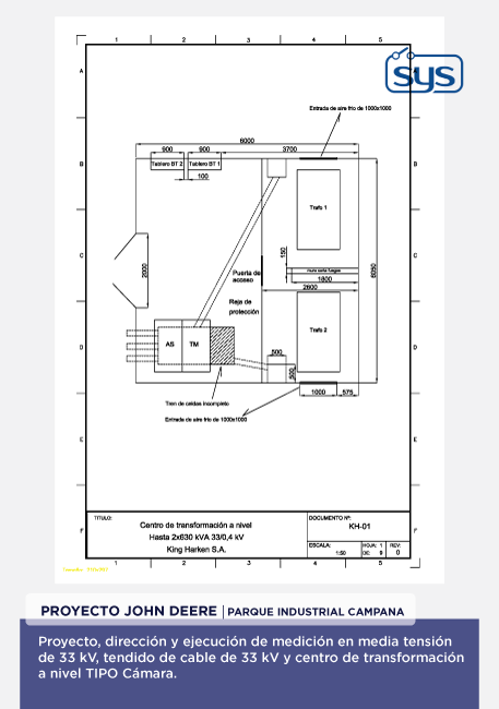
JOHN DEERE (ex King Harken), Parque Industrial Campana

Proyecto, dirección y ejecución de medición en media tensión de 33 kV, tendido de cable de 33 kV y centro de transformación a nivel TIPO Cámara.

Cliquée sobre la imagen para ver la galería

FROGORÍFICO GORINA

Tendido de conductores de baja y media tensión, fabricación e instalación de tableros de potencia, automatización y control de procesos, instalación de celdas de media tensión, ejecución de terminales de media tensión y fabricación e instalación de comandos a distancia

Cliquée sobre la imagen para ver la galería

TOREDO S.A, curtiembre en Brandsen

Retiro e instalación de cables de potencia sobre bandejas en altura.

Cliquée sobre la imagen para ver la galería

EDELAP S.A

instalación de columna de H°A° y reconectador de 13,2 kV con comando electrónico.

Cliquée sobre la imagen para ver la galería

EDELAP S.A

trabajos de obras de expansión y mantenimiento de redes de media tensión de 13,2 y 33 kV.

Cliquée sobre la imagen para ver la galería

EDEN S.A

Reparación de columnas de media tensión dañadas en tornado, zona Campana, Provincia de Buenos Aires.

Cliquée sobre la imagen para ver la galería

Déjenos su mensaje a través de WhatsApp

Le responderemos a la brevedad.

Contacto

Nuestras vías de comunicación

Formulario Web

Envíenos ahora su consulta.

Success/Error Message Goes Here



Arriba